Проект современного таунхауса в закрытом жилом комплексе «Эльс Пинарс» в Льорет-де-Мар
869 500 €

Льорет-де-Мар

ID:
24577270
Тип:
Дом / Вилла
Кол-во комнат:
4
Кол-во санузлов:
4
Площадь:
360 м²
Гараж/Паркинг:
Есть
Оставить заявку на просмотр

Описание объекта

Новый проект современного таунхауса в закрытом жилом комплексе «Эльс Пинарс» в Льорет-де-Мар, всего в 3 км от моря. Дом отличается высококачественной отделкой, идеальной южной ориентацией и видом на море. Состоит из 3 этажей и солярия на крыше с бассейном.

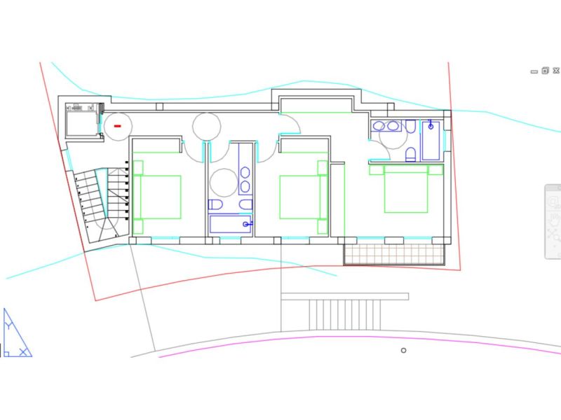
Распределение помещений по этажам

Цокольный этаж (подвал):

  • Гараж: 129.37 м²
  • Техническое помещение (отопление/кондиционирование/ГВС): 5.57 м²
  • Кладовая: 5.57 м²

Первый этаж (гостевой):

  • Спальня (3) с собственной ванной (Suite): 22.14 м² + ванная комната 5.58 м²
  • Спальня (2) двуспальная: 12.76 м²
  • Спальня (1) двуспальная: 12.76 м²
  • Общий санузел (1-2): 7.60 м²

Второй этаж (дневная зона и мастер-спальня):

  • Спальня (4) двуспальная с собственной ванной (Suite): 12.81 м²
  • Гостиная с камином + кухня с островом: 45.88 м²
  • Санузел (4): 6.21 м²
  • Прачечная: 5.55 м²

Крыша (терраса-солярий):

  • Солярий с видом на море и бассейном: 61.64 м²

Ключевые особенности и технологии

  • Энергоэффективность: Сертификат энергоэффективности класса «А». Дом спроектирован для максимального комфорта и экономии энергии.
  • Теплоизоляция: Наружная система теплоизоляции (SATE) для высокой энергоэффективности.
  • Окна: Высококачественное остекление и оконные профили.
  • Доступность: Полная доступность для людей с ограниченной подвижностью на всех этажах.

Инженерные системы и оборудование

  • Климат-контроль: Высокоэффективная система отопления, охлаждения и ГВС на основе аэротермии. Отопление — водяные теплые полы. Охлаждение — индивидуальные фанкойлы в каждой комнате.
  • Горячее водоснабжение (ГВС): Комбинированная система: аэротермия (бойлер 200 л) + солнечные коллекторы (160 л) для максимальной экономии.
  • Освещение: Во всем доме установлены светодиодные (LED) светильники.
  • Умный дом (Domótica): Интегрированная система управления:
    • Управление внешними жалюзи
    • Видеодомофон
    • Управление поливом сада
    • Управление бассейном
    • Управление внутренним и внешним освещением
    • Управление климатической системой и ГВС
    • Дистанционное управление через мобильное приложение
  • Фотовольтаика: Предустановка для монтажа солнечных панелей (до 14 шт., ~6 кВт). Предусмотрено место для инвертора, аккумуляторной батареи и зарядного устройства для электромобиля.
  • Лифт: Предустановка лифта на 6 человек, доступного для маломобильных людей.
  • Бассейн: Бассейн на террасе с системой солевого хлорирования и LED-подсветкой.
  • Кухня: Дизайнерская кухня со встроенной техникой класса А+ и островом.

Преимущества и уникальное предложение

Это уникальная возможность приобрести дом с максимальным комфортом и минимальными затратами на энергию. В рамках проекта предусмотрена возможность для покупателя адаптировать некоторые элементы интерьера и отделки на этапе строительства.

Технические параметры

  • Количество спален: 4
  • Количество санузлов: 4
  • Общая площадь дома: ~360 м²
  • Участок: Жилой комплекс «Els Pinars»
  • Расстояние до моря: 3 км

Посморите другие Дома в Льорет-де-Мар

Продается 2к дом 57 м² в Льорет-де-Мар
  • Вид на море
  • Продажа
  • Дом / Вилла
  • 25
Продается 2к дом 57 м² в Льорет-де-Мар

Льорет-де-Мар

  • 2 комн.
  • 1 сан.
  • 57 м² пл.
Продается вилла 420 м² с потрясающим видом на море, участок 902 м² в Льорет-де-Мар
  • Вид на море
  • Продажа
  • Дом / Вилла
  • 11
Продается 3к дом 143 м², участок 651 м² в Льорет-де-Мар
  • Вид на море
  • Продажа
  • Дом / Вилла
  • 24
Продается 3к дом 143 м², участок 651 м² в Льорет-де-Мар

Льорет-де-Мар

  • 3 комн.
  • 2 сан.
  • 143 м² пл.
  • 651 м² тер.
Дом с двумя независимыми квартирами, большим участком и видом на горы в La Creu de Lloret — 3638
  • Продажа
  • Дом / Вилла
  • 62
Продается 4к дом 136 м², участок 456 м² в Льорет-де-Мар
  • Продажа
  • Дом / Вилла
  • 7
Продается 4к дом 136 м², участок 456 м² в Льорет-де-Мар

Льорет-де-Мар

  • 4 комн.
  • 2 сан.
  • 136 м² пл.
  • 456 м² тер.
Продается роскошная вилла 454 м², участок 1067 м² с видом на море, бассейном и туристической лицензией в Льорет-де-Мар
  • Тур. лицензия
  • Вид на море
  • Продажа
  • Дом / Вилла
  • 31
Продается 5к вилла 233 м², участок 872 м² в Льорет-де-Мар
  • Продажа
  • Дом / Вилла
  • 58
Продается 5к вилла 233 м², участок 872 м² в Льорет-де-Мар

Льорет-де-Мар

  • 5 комн.
  • 2 сан.
  • 233 м² пл.
  • 872 м² тер.
Продается 7к вилла 454 м², участок 1067 м² с видом на море, бассейном и туристической лицензией в Льорет-де-Мар
  • Тур. лицензия
  • Вид на море
  • Продажа
  • Дом / Вилла
  • 31
Продается вилла 335 м², участок 1021 м² с туристической лицензией и панорамным видом на море в Кала-Каньельес, Льорет-де-Мар
  • Тур. лицензия
  • Вид на море
  • Продажа
  • Дом / Вилла
  • 23

99% клиентов оценили работу с нами на 5+

Коллектив имеет многолетний опыт в сфере недвижимости. Может решить задачу любой сложности, чтобы решить задачу клиента.

Знаем все про недвижимость на Costa Brava.

Найдём лучший вариант с учётом вашего бюджета!

Анна

Покупка квартиры

Работать с X-ESTATE было легко и комфортно. Нам предложили несколько отличных вариантов, подробно объяснили все нюансы покупки недвижимости в Испании. Сделка прошла без лишних сложностей.

Катя

Продажа апартаментов

Вам нужна помощь с поиском недвижимости?

Вам нужна помощь с поиском недвижимости?

Пожалуйста, свяжитесь с нами в любое время, мы сделаем все возможное что бы Вам помочь!

Связаться с нами