Продается 4к дом 200 м² в престижном районе Рока-Гроса, Льорет-де-Мар
670 000 €
Льорет-де-Мар
Описание объекта
Исключительная новая постройка (Obra Nueva) в престижном районе Рока-Гроса с панорамными видами на лес, поселок и море.
- Расположение: Район Roca Grossa (нижняя часть), одна из самых эксклюзивных зон Льорета.
- Близость: 7 минут пешком до муниципального детского сада Lola Anglada. Тихое место в окружении природы, но со всей необходимой инфраструктурой.
- Площадь: Общая площадь — 200 м².
- Вид: Потрясающие панорамные и свободные виды на лес, море и живописный поселок из всех комнат.
Распределение помещений по этажам
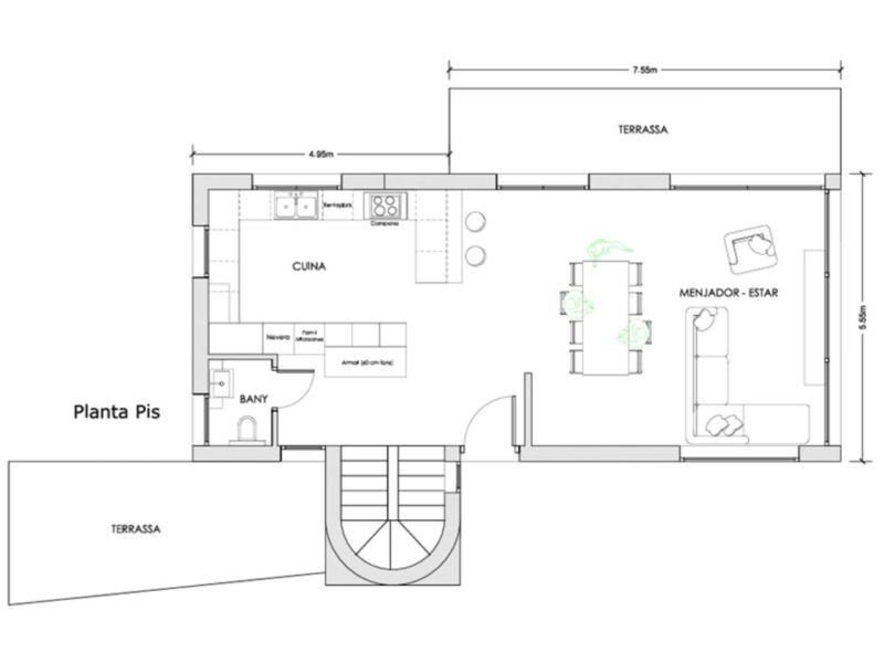
Основной этаж (Planta Principal):
- Просторная светлая гостиная-столовая с открытой кухней в виде полуострова (península).
- Гостевой санузел.
- 2 террасы (передняя и задняя) с захватывающими видами на лес и море.
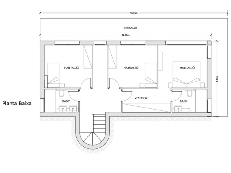
Нижний этаж (Planta Baja):
- 2 двуспальные спальни.
- 1 отдельный санузел.
- Главная спальня (сьют) с собственной ванной комнатой и гардеробной со встроенными шкафами.
- Все спальни имеют прямой выход в сад и на общую просторную террасу, соединяющую помещения.
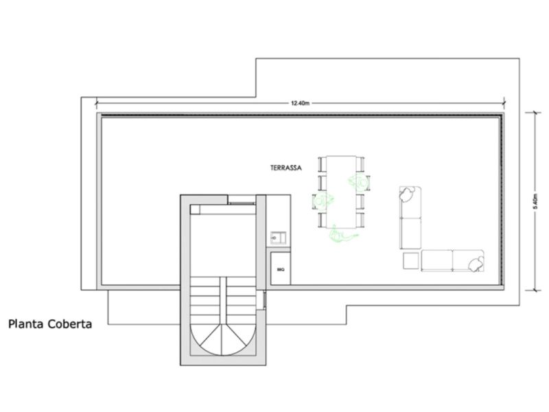
Крыша (Planta Cubierta):
- Впечатляющий солярий с зоной для барбекю, идеальный для отдыха с панорамными видами.
Участок и внешние зоны
- Частный сад с возможностью установки бассейна.
- Внешняя парковочная зона.
Оснащение и отделка
- Материалы: Высококачественные керамогранитные полы, плитка и столешницы.
- Климат-контроль: Отопление радиаторами и система кондиционирования холод/тепло (сплит-системы).
- Электрика: Система "Умный дом": электрические рольставни (с возможностью управления), светодиодное освещение.
- Кухня: Встроенная бытовая техника.
- Состояние: Вся инженерия и системы абсолютно новые, только что установлены. Энергоэффективность и комфорт.
Технические параметры
- Количество спален: 4 (включая главный сьют)
- Количество санузлов: 3
- Общая площадь: 200 м²
- Тип: Новая постройка (Obra Nueva)
- Этажность: Двухуровневая вилла с солярием
Посморите другие Дома в Льорет-де-Мар
99% клиентов оценили работу с нами на 5+
Коллектив имеет многолетний опыт в сфере недвижимости. Может решить задачу любой сложности, чтобы решить задачу клиента.
Знаем все про недвижимость на Costa Brava.
Найдём лучший вариант с учётом вашего бюджета!
Работать с X-ESTATE было легко и комфортно. Нам предложили несколько отличных вариантов, подробно объяснили все нюансы покупки недвижимости в Испании. Сделка прошла без лишних сложностей.
Вам нужна помощь с поиском недвижимости?
Пожалуйста, свяжитесь с нами в любое время, мы сделаем все возможное что бы Вам помочь!









































